足不出户 专家讲解

立即带看
房源信息
交易信息 产权性质商品房住宅 物业类型普通住宅
产权年限70年产权 房本年限满二年
唯一住房
参考预算首付21万,月供5179元
发布信息 发布公司 保定志科房产
营业执照91130605MA0DF55G7D
发布时间2025-09-10
房源概况
王玲芳
705神奇分
佣金≤0.5% 保定志科房产 保定志科房产5区店
报价
140
电话咨询
核心卖点
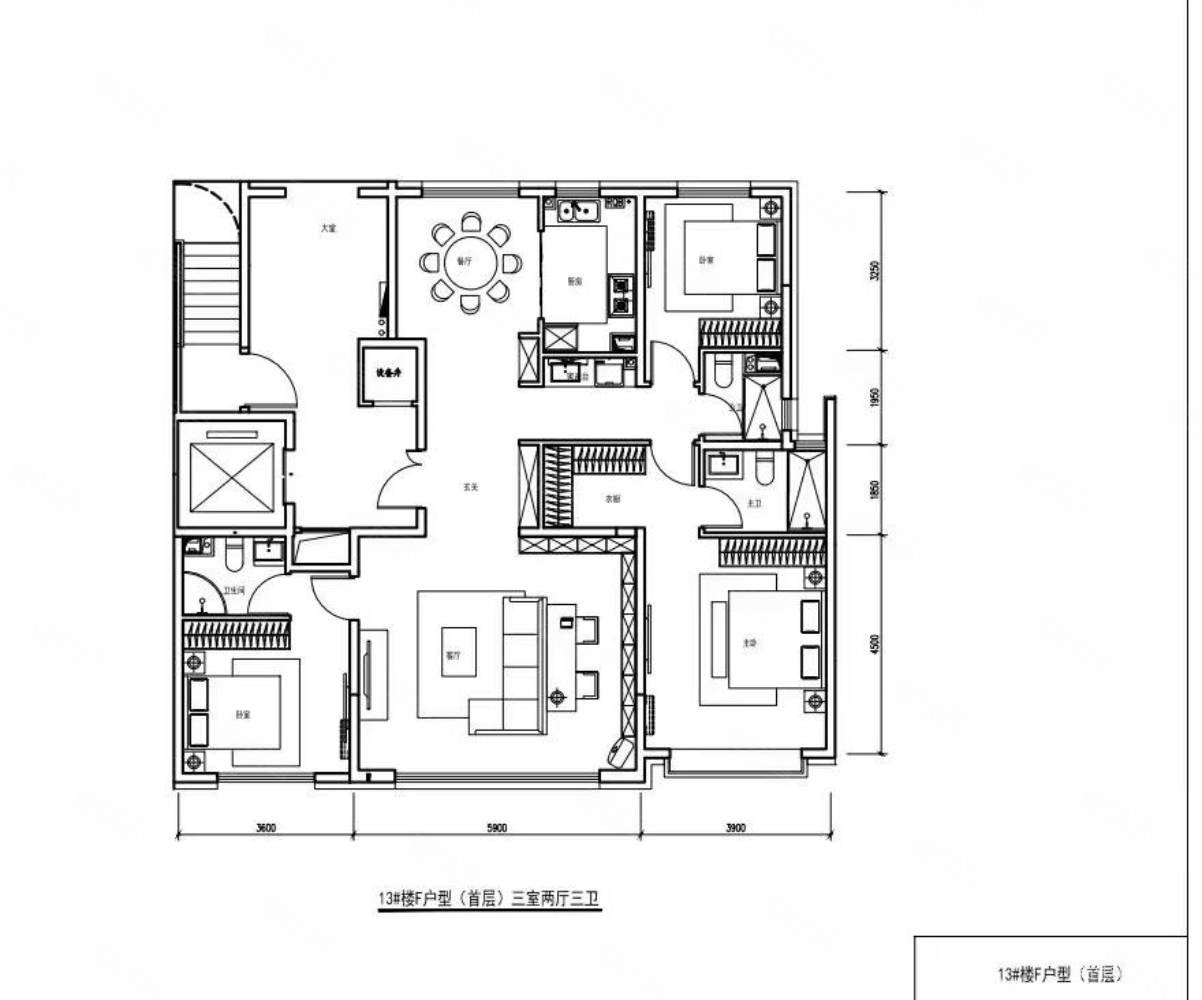
1.房源优势: 同时属于中层,采光好,取暖佳,不沿街,不靠山。
2.装修情况:毛坯,可以尽情按您的想法进行装修。
3.产权情况:产权清晰,无后顾之忧。双证齐全
4.户型介绍:户型方正,公摊小,正规的 居室,清新阳光照进屋内,超大客厅,舒适家居。
业主卖房原因:其实业主是舍不得卖的,因为业主工作变动,30天以上急卖。
业主心态
【1】房源 与 图片 都是 亲自 实地 勘查过,真实
【2】房主配合贷款,配合签约时间
【3】对于付款方式没有特别要求
【4】房主诚心出售已委托给我们,看房有钥匙很方便
服务介绍
一手房顾问:王芳
从业房产数年 专业 诚信 置业 《不收取您任何费用》
为您提供专业知识,以及后期的售后服务。
不是您没有遇到诚心如意的房子
也不是您没有遇到合适的价格
而是没有遇到为您全力以赴的房产经纪人
给您保家护航用 努力,换您的 满意,用行动证明
全心全意帮您选择满意的家
随时看房 微信电话同步欢迎咨询
展开更多

小区均价

10215元/㎡ 0.85%

小区户数

1284户

物业费用

暂无

容积率

暂无

绿化率

暂无

房价走势
彩虹城
10215元/㎡
小区单价
0.85%
比上月
竞秀学校
6824元/㎡
商圈单价
-2.38%
比上月
实地核验
140
9151.0元/㎡
首付及税费详请咨询经纪人
323
低层(共17层)
153
毛坯
南北
2022年竣工/普通住宅
满二年 唯一住房 有电梯 次新房 采光较好 直对通风 动线良好
王玲芳
705神奇分
佣金≤0.5%
保定志科房产
微信扫码拨号